Emprendimiento en desarrollo · Villa Pueyrredón

Av. Mosconi 2660 / 2664

Un edificio con carácter propio en uno de los barrios más consolidados de Buenos Aires. Recorrelo en imágenes, descargá el material y consultá con el equipo de Cifre.

  • Décadas de experiencia en obra y desarrollo
  • 4 sucursales propias en CABA
  • 80 años de trayectoria Cifre

El proyecto

Unidades de 2 a 4 ambientes en Villa Pueyrredón

En el corazón del barrio de Villa Pueyrredón, este proyecto residencial se desarrolla en 5.500m² con departamentos funcionales, detalles de diseño y materiales de primera calidad. Situado sobre una de las avenidas más importantes del barrio, con todos los servicios al alcance.

El último piso alberga 222m² de amenities únicos en la zona: solarium, pileta, salón de usos múltiples, terraza con parrilla y gimnasio. Proyecto y dirección a cargo de Cifre Lorenzo Cifre.

2 a 4 ambientes 5.500m² desarrollados En construcción Villa Pueyrredón

Amenities en el último piso

Pileta Solarium · 110m² Salón de usos múltiples · 60m² Terraza con parrilla · 29m² Gimnasio · 20m²
Registro visual del emprendimiento de Av. Mosconi
Vista del proyecto Av. Mosconi 2660 / 2664 · En construcción

01

Amenities únicos en la zona

222m² en el último piso: solarium, pileta, salón de usos múltiples, terraza con parrilla y gimnasio. Una propuesta sin competencia en el barrio.

02

Terminaciones de primera marca

Porcellanato 40×40cm, aberturas en aluminio con DVH, cocinas equipadas, agua caliente central con sistema de recuperación y pre-instalación de splits.

03

Consulta directa con Cifre

Equipo disponible por WhatsApp, mail y cuatro sucursales en la zona para resolver cualquier consulta y acompañar el proceso de compra.

Ubicación

En el corazón de Villa Pueyrredón

Sobre Av. Mosconi, una de las arterias más importantes del barrio, a metros del Metrobús Av. San Martín, el Tren Línea Mitre y la Autopista Gral. Paz. Con supermercados, farmacias, escuelas y centros médicos al alcance.

  • Metrobús Av. San Martín
  • Tren Línea Mitre
  • Autopista Gral. Paz
  • Plaza Martín Rodríguez
  • Bancos y supermercados
  • Centros médicos
Ver en Google Maps

Material descargable

Brochures del proyecto

Dos documentos completos para conocer el emprendimiento en profundidad y compartir con quien lo necesite.

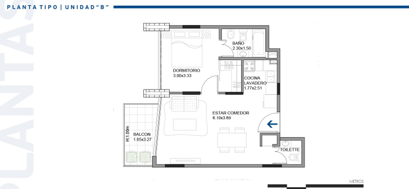
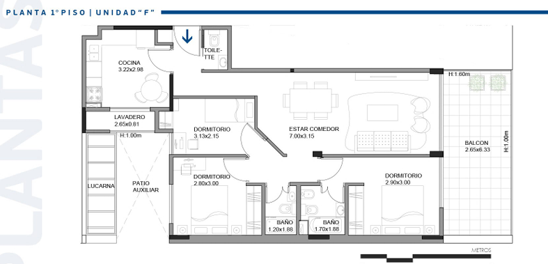
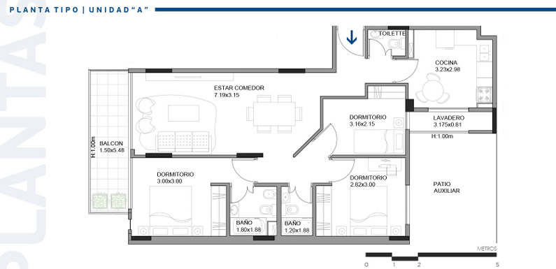
PDF 01 · Planos

Plantas con mobiliario

Plantas arquitectónicas completas con distribución de mobiliario: subsuelo, planta baja, pisos 1° al 10° y planta de amenities. Plantas de todos los pisos con distribución de mobiliario.

Ver planos

PDF 02 · Brochure comercial

Presentación completa

Renders, plantas por unidad con metrajes detallados, proyectos similares realizados y toda la información comercial del emprendimiento. Renders, plantas con metrajes y toda la información comercial.

Ver brochure

Amenities en el último piso · 222m² · Únicos en la zona

110m² Pileta y solarium
60m² Salón de usos múltiples
29m² Terraza con parrilla
20m² Gimnasio

Trayectoria constructora

Nuestros Edificios

Cifre Lorenzo Cifre tiene más de 7 edificios construidos y entregados en los barrios de Villa Pueyrredón, Villa Urquiza, Villa Devoto y Belgrano. Cada uno, un respaldo concreto de experiencia y calidad.

B. Encalada 5494
B. Encalada 5494
C.A. Lopez 3418
C.A. Lopez 3418
Honduras 4586
Honduras 4586
Jaramillo 1686
Jaramillo 1686
Helguera 4525
Helguera 4525
Chivilcoy 4497
Chivilcoy 4497
San Martín 7433
San Martín 7433 Última obra

Contacto

Consultá este edificio con el equipo de Cifre

Si querés recibir más información, compartir el brochure o avanzar con una consulta puntual, podés escribir por WhatsApp, enviar un mail o acercarte a cualquiera de las sucursales de Cifre en la zona.

Suc. Villa Pueyrredón Av. Mosconi 2699 · 11 4574-4444
Suc. Villa Urquiza Av. Olazábal 4980 · 11 4521-3333
Suc. Villa Devoto Av. Chivilcoy 4499 · 11 4504-4444
Suc. Belgrano Av. Cramer 2399 · 11 5243-1333